
Streugutlagersilos
GFK / Stahl
Salzsilos in kombinierter GFK-Stahl Bauweise zur trockenen Lagerung und schnellen Verladung von Streusalz
Prospekte
| Prospekte | Download |
|---|---|
| Gesamtprospekt HOLTEN |
Datenblätter Streugutlagersilos GFK/Stahl
| Lagerkapazität | Download |
|---|---|
| Gesamtübersicht Streugutlagersilos GFK/Stahl |
Allgemeine Musteranordnungen
| Anordnung | Download |
|---|---|
| Streugutlagersilo GFK/Stahl + Soleerzeuger | |
| Streugutlagersilo GFK/Stahl + Soleerzeuger + Solelagertank | |
| Streugutlagersilos 3 x 100 m³ + Soleerzeuger | |
| Streugutlagersilo / Soleerzeuger B8 + Pumpstation + Solelagertank |
Referenzen (Auszug)
Wie lange ist die Montagedauer?
Der Streugutlagersilos wird in einem Stück angeliefert und umgehend aufgestellt,
so dass der Silo noch am Tag der Montage nutzungsbereit ist.
Wie wird der Silo mit Salz befüllt?
Das Streusalz wird in den Silo mittels Silo-LKW eingeblasen,
die Silobefüllung führt der Salzlieferant eigenständig durch, eine Hilfestellung durch den Nutzer ist nicht notwendig.
Wie erfolgt die Anlieferung des Silos?
Der Silo wird in einem Stück, mittels eines Tiefladers, am Aufstellort angeliefert,
es sollte darauf geachtet werden, dass zur Entladung der Liefer-LKW direkt an dem vorgesehenen Fundamtent stehen kann.
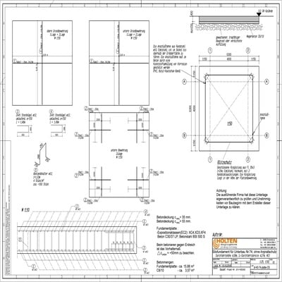
Sind Fundametpläne dem Lieferumfang beinhaltet?
Eine statische Berechnung und Fundamentpläne sind dem Lieferumfang enthalten.
Werden Medienanschlüsse benötigt um den Silo betreiben zu können?
Es werden keinerlei Medienanschlüsse, wie z.B. Strom, benötigt um den Silo betreiben zu können,
da in der Standardausführung sämtliche Bedienungen mechanisch erfolgen.







































